|
水平层流洁净病房设计与改建
刘松波1 ,浦键2 ,郑治3 1. 黑龙江省经济管理干部学院,黑龙江哈尔滨150080 ; 2. 哈尔滨理工大学,黑龙江哈尔滨150080 ; 3. 黑龙江省机械工业建筑工程公司,黑龙江哈尔滨150000
摘 要:百级洁净病房是一个多功能的综合系统,是卫生学与工程学、建筑平面设计与净化空调系统的有机结合,它满足了空气洁净技术、卫生学无菌技术、医疗管理科学和建筑设计学科的综合要求,取得了较好的社会效益和经济效益。
关键词:净化洁净病房;设计与改建;空调;系统工程
Abstract : The cross flow clean room is a compositive system with many functions. It’s an organic combi2nation of hygienics , engineering , flat design of architecture and clean air conditioning system , and it alsoobtained better both society and economic benefits.
Key words : Cross flow clean sickroom; Design and reform; air conditioning ; systems engineering
1工程概况
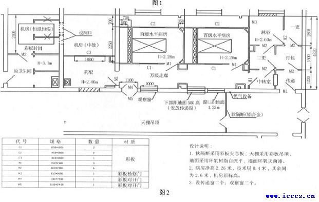
2001 年哈医大二院在肿瘤科内设百级洁净水平层流病房,详见图示,现决定对其改造成为肿瘤科病房。尤其是术后的肿瘤病患者,需要一个高度洁净的无菌病房环境。设立肿瘤科百级洁净病房是医疗技术不断发展完善的需要,也是医疗建筑的一项创新。
2 肿瘤科病房的布局及改造设计方案
由原传染病房改造成为肿瘤病房,在设计布局的方案中,应考虑到原房间进深、开间、面积、净高、采光等因素的限制,按照功能流程简捷性、污洁分流严格性相结合的原则,为保证在有限区域内满足肿瘤病房最大限度的使用功能及医疗管理的要求,需重新进行平面布局,对原结构实施改建。
2.1 平面设计及改造方案
(1) 原软间墙拆除: 打通三个房间作为病房区,保留一个房间分隔后作为机房和药配室,在贯通的三个房间(47. 64m2 ) 内设两个隔离病房,净化级别为百级。
(2) 设一更、二更、中转室、缓冲室,其净化级别为万级;为配合对患者的辅助医疗,设淋浴间和药配间各一处。
(3) 避免洁净物与非洁净物的交叉感染,按物流走向,分别设洁净传递窗,非洁净传递窗各一套,内设紫光灭菌灯。
(4)考虑到安全防火疏散,在内走廊洁净区与外走廊非洁净区,不设通用的固定钢化玻璃门,而设双层门:内层为彩板双开门,外层为塑钢门,密封性能好,平时不启用,在应急状态下作为疏散门,或特殊情况下方便患者进出,这样既满足安全疏散的功能,又保证洁净区的隔离作用。
(5) 为保证洁净区医务人员、患者通行,设内走廊。
(6) 为满足患者家属探视方便,在非洁净区走廊,设探视窗两处,使之在视线上能较好地看到患者在病房内的状况,便于患者和患者家属在情感上的交流。
(7)为加强该区域管理充分利用空间,在走廊一端用铝合金隔断将走廊进行分隔,作为辅助用房,使一层办公室和病区医疗相联系,更好地为患者服务。
(8) 根据净化空调机组使用空间需要,将相临卫生间打通,设洞口,局部拆除作为机房的延伸部分;按空调送、回风系统要求,间墙上开洞处理,保证系统管道的合理布置。在空调风道穿越墙体部位做结构处理,设钢结构过梁,工序为:放线→墙面双面人工开槽→安放槽钢→加固支撑→墙体掏洞→抹灰处理。
2.2 平面布局及人流、物流
(1) 平面布局设计及净化级别: (具体详见施工平面布置图)

(2) 洁净病房工艺流程:确保使用功能,医疗流程符合洁净规范要求,减少交叉路线,结构紧凑,安全便捷。
(3) 人流的流向图:
 (4) 物流传递工艺流程图:

3 肿瘤科水平层流百级洁净病房净化设计施工说明
(1) 采用轻质隔热夹芯板作为软间墙及天棚技术夹层,设计要求软间墙高度分别为2.46m、2.6m、2.26m。
(2) 采用R 型内外圆角铝等铝型材配件为连接配件,做到外观美观,密封性好,防积尘,防滋生微生物,满足GMP 对于洁净技术的要求。
(3) 选用玻璃丝棉隔热耐磨夹芯板及配件,符合GMP 洁净病房建筑装饰总原则:不产尘,不积尘,耐腐蚀,防潮,防雷,防火及易清洁等要求。
(4) 夹芯板棚面采用膨胀螺栓和铁件与原混凝土结构连接。
(5) 内门均采用玻璃丝棉隔热夹芯板制作,采用密封胶条密封;门上部设固定观察窗,门分别采用850 ×1900mm ,1200 ×1900mm;门锁采用不锈钢球型锁具,门五金为不锈钢。
(6) 走廊、病房隔断上设观察窗,均采用固定式,采用钢化玻璃,两窗相互呼应。
(7) 原有地面平整干燥,具有一定强度,采用SEC - ELM 无溶剂型环氧树脂自流平砂浆刮抹地板,应符合自流平砂浆工艺流程,保证施工质量。
(8) 洁净区墙面刷环氧灭菌漆二道,非洁净区(走廊) 墙面刷普通涂料三遍。
(9) 根据空调要求在病房和水平层流送风口相对应另一侧设回风道,考虑到室内面积较小,回风道在同侧 成45°角(墙角) ,用彩板制成回风道(墙) 满足使用功能要求。
(10) 按设计要求设传递窗,为密封性结构,窗四框用内R 型钢角铝双面打胶密封,使之不易积尘。
(11) 利用原结构窗口进行局部改造,封闭后作为淋浴间贮藏壁柜,巧为利用解决淋浴间面积紧凑问题。
4 室内电气设备工程改造方案
(1) 废掉原动力线,照明及动力电源线径均改为铜芯4.0 - 6.0mm2 线。
(2) 室内设组合式配电箱,病房设有漏电保护器组合式插座箱,用以满足医疗设备临时用电。
(3) 洁净走廊区设置有停电应急照明灯、方向指示诱导灯;病房内设一组紫光电子灭菌灯,一组防尘照明荧光吸顶灯;在传递窗内设紫光灭菌灯,在相应处设开关。
(4) 在空调机房设动力配电系统、动力配电箱以及临时用电应急系统。
(5) 为医疗需要在医生室和护士站设远程闭路电视监控系统,便于掌握患者动态,跟踪治疗。
(6) 在百级层流病房内,患者床头设护士呼叫系统(入墙式) 方便患者。
(7) 室内适当部位设置吊杆式彩色电视,以满足患者的需求。
5 水平层流百级洁净病房医疗设备设计及要求
(1) 供氧系统:考虑到医疗需要,在病房床头一侧设供氧系统。
(2) 设压差表:洁净走廊与非洁净走廊设置精确计量排风系统,使其压力表分别控制在+ 5Pa~ - 5Pa ,将空气流动按设计要求相对锁定,严格按设计标准运行。
(3) 为配合辅助医疗,洁净区设药浴盆、淋浴间,配置不锈钢洁净淋浴设备。
(4) 室内给水按照工艺要求设置,给水管采用日丰管,暗敷设于天棚或地面以下,室内明露给水管采用不锈钢管DN32 ,不锈钢卡具,采用感应式水龙头。
(5) 排水利用原系统,地漏采用不锈钢JHD 环保型专用净化地漏。
6 洁净病房工序安排
原结构拆除、改造加固(土建工程) →给排水重新敷设→电照及动力系统重新敷设→净化空调系统制作安装→彩板隔断制作安装→墙面环氧灭菌漆涂刷→环氧树脂自流平地面层→电器及医疗设备安装调试→净化空调系统调试与检测→竣工验收。
7 应当考虑的几个问题
7.1 环氧树脂自流地坪:
(1) 基底地面必须平整,材质密实,具有一定强度,不允许出现裂纹。
(2)环氧树脂在施工前,基底地面应保持干燥,不得积尘或起尘,施工期应注意气温变化对质量的影响。
7.2 本工程为百级净化标准:
从保障体系的思路来看,正压控制是保障体系中最重要的手段,仅靠空间密封来维持病房无菌是无济于事的,只有保持无菌区域内的压力高于外界,才能防止外界污染空气的侵蚀。
8 肿瘤水平层流洁净病房净化工艺及检测
8.1 净化空调系统(HAVc) 工艺:
按照对肿瘤病房百级净化,各洁净室万级净化的标准要求,空调系统设计根据组合式空调机组( GBPT14294 - 93)中规定,机组功能段可分为:室外新风→初效过滤→与室内回风混合→中效过滤器→高效过滤器(水平层流) →层流洁净室→回风,由此完成空气净化处理全过程。送风机采用室外机,为减少噪声设消声系统。
8.2 检测:
经哈尔滨工业大学建筑节能检测中心检测,工程完全符合国家相关规范要求。


9 结语
百级层流病房改建工程是一门综合性很强的课题。希望在医务工作者、建筑设计师和净化空调、洁净装饰行业等各界同仁共同努力下,使肿瘤百级洁净病房建设更加规范,本工程是一次成功的尝试。
参考文献
[1] 许仲麟. 空气洁净工程原理[M] . 1998. [2] 《洁净室施工及验收规范》(J GJ71 - 90) . [3] 《综合医院建筑设计规范》(J GJ49 - 88) . [4] 《采暖通风及空气调节设计规范》(GBJ19 - 87) . [5] 《医院洁净手术部建设标准》(卫生部2000 年4 月10 日) .
建议您将《水平层流洁净病房设计与改建》收藏到网摘,方便以后查看。点上面的图标就能收藏!
|